







Un árbol en fachada convierte en memorable una calle anodina de Granollers: sus ramas van a alcanzar mucho más lejos de lo que la normativa permite a los balcones.
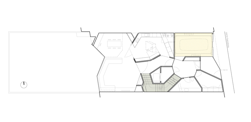
El espacio interior de la casa se divide en burbujas o alvéolos de espacio habitable que llenan un molde (las medianeras) y rebosan por encima de su recipiente provocando entradas cenitales de luz a diferente altura.
Como en las casas gemelas de Bellaterra la geometría no responde a un patrón ortogonal sino que –igual que hace la vida cuando busca mayor rendimiento– a un patrón poligonal libre que aumenta las posibilidades de conexión y ajuste entre espacios.
En una sección compleja, con diferentes espacios a doble altura y oportunidades de conexión visual, las escaleras no se enrollan sobre si mismas como es habitual, sino que acompañan el cambio de escenario que supone ascender a cada nueva planta
